 |
|
|
Differential Ultra/Wide SCSI Controller
StorEdge L1000
| 370-3521 |
Symbios SYM8751D 3.3V/5V 32-Bit 33MHz PCI |
Notes
- The ribbon cable provides an external HD68 SCSI connector above the
Power Supply at the rear of the StorEdge L1000.
- The ribbon cable does not have a Sun part number.
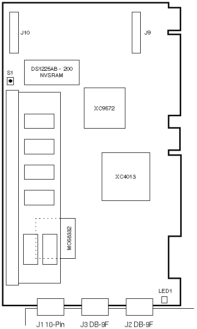
Robotics Controller Board
StorEdge L1000
| 370-3525 |
Controller w Memory ATL 6220495
Memory Module ATL 6220340 |
Notes
- The Dallas NVSRAM is not socketed.
- Connector J1 is covered by a 10-Pin plug.
- The Memory Module does not have a Sun part number.
Actuator Driver Board
StorEdge L1000
5-Slot Backplane
StorEdge L1000
|
|
|